Tradition trifft

Potenzial – Gastronomieimmobilie im Herzen von Jagerberg …!

Übersicht
Objektnummer:
88906890
Objektart:
Gastronomischer Betrieb
Typ:
Altbau
Adresse:
Jagerberg 59,
8091 Jagerberg
Grösse
Nutzfläche:
643,19 m²
Ausstattung
Heizung:
Öl-Zentral
Beziehbar ab:
nach Absprache
Energieausweis
HWB C 93,50kWh/m²a
Energieklasse fGEE: C (1,24)
Weitere Infos finden
Sie im Exposé
Ihre zukünftige Immobilie im Überblick

Im Zentrum von Jagerberg, ungefähr 22 km von Feldbach und ca. 21 km von Leibnitz entfernt, gelangt eine einzigartige Immobilie zum Verkauf, die Geschichte, Charakter und vielseitige Nutzungsmöglichkeiten vereint.

Das Objekt befindet sich in bester Lage direkt an der Hauptstraße des Ortes, wodurch es sowohl für Einheimische als auch für Durchreisende hervorragend sichtbar und gut erreichbar ist.
Zuletzt wurde es als Pizzeria betrieben – eine Nutzung, die sich aufgrund der vorhandenen Infrastruktur rasch wieder aufnehmen lässt, aber auch Raum für neue Konzepte bietet.

Das historische Gebäude, dessen Ursprünge bis ins späte 18. Jahrhundert zurückreichen, wurde über die Jahre laufend gepflegt und erweitert.
Die heutige Substanz stammt großteils aus dem Jahr 1850, als es als Pferdewechselstation für Postkutschen diente.
Eine umfassende Erweiterung erfolgte 1996.

Ein asphaltierter Innenhof mit mehreren Parkplätzen sorgt für Komfort und praktische Erreichbarkeit.

Beheizt wird das gesamte Gebäude über eine zentrale Ölheizung.

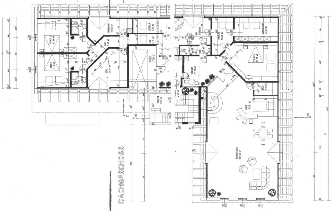
Das Objekt mit einer Gesamtnutzfläche von rund 643 m² bietet ideale Voraussetzungen für den Umbau zu Wohnungen – inklusive attraktiver Fördermöglichkeiten durch das Land Steiermark.

Das Erdgeschoss umfasst rund 297 m² und beherbergt die großzügige Gaststätte samt Nebenräumen.
Im Ober- und Dachgeschoss stehen zusätzlich etwa 346 m² als Wohnbereich oder zur weiteren Nutzung zur Verfügung – ideal für Betreiber, Vermietung oder zur individuellen Gestaltung.

Diese Liegenschaft ist ideal für all jene, die einen gastronomischen Betrieb mit historischem Flair und großzügigem Wohnbereich übernehmen möchten – oder ein vielseitig nutzbares Objekt in bester Lage mit Entwicklungspotenzial suchen …!

JETZT EXPOSÉ SICHERN

Entdecken Sie Ihr neues Zuhause! Sichern Sie sich jetzt Ihr Exposé – gerne stehen wir Ihnen persönlich zur Seite und beantworten all Ihre Fragen.

x